Lass die Sonne in dein Herz.
Löwenberger Straße 5, 10315 Berlin Objektnummer : 90-1797010020
Etage 5
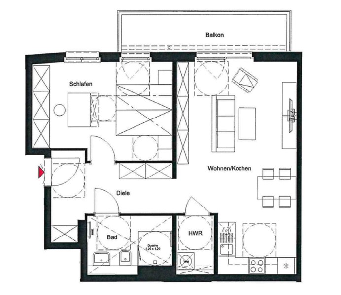
2,5 Zimmer
68,17
1.589,73
Löwenberger Straße 5, 10315 Berlin

Nicht nur das perfekte Zuhause, sondern ein Lebensgefühl. Frisch, anders, sonnendurchflutet mit viel Platz zur Gestaltung der eigenen 4 Wände. Willkommen im neuen Wohnquartier. Ausdrucksstark, charmant, einladend. Echtholzparkett, Marken-Einbauküche incl. Geräte (Cerankochfeld, Flachschirm-Dunstabzugshaube, Kühl-Gefrierkombination, Geschirrspülmaschine, Edelstahlspüle mit Armatur), Fußbodenheizung, weiße glatte Wände, Bäder mit Marken-Sanitärobjekten, Waschtisch, verchromte Armaturen, Badewanne und/oder Dusche.

Wir freuen uns auf Sie.

Ihr BUWOG Vertriebsteam

Joachim Keyling

Details & Ausstattung

Etage
5
Zimmer
2,5
Küche
Aufzug

Preisinformation 

Mietpreis (kalt)
1.287,73 €
Betriebskosten
213,00 €
Heizkosten
89,00 €
 Mietpreis (gesamt)
1.589,73 €
 Zzgl. Mietsicherheit
3.863,19 €

Einrichtung

barrierefrei; Barrierearmes Gebäude; Aufzug; Balkon; Bodengleiche Dusche; Einbauküche; offene Küche; E-Herd; Abstellraum; Parkett; Fußbodenheizung; Zentralheizung; Fernwärme; Rollläden; Isolierverglasung; Mieterkeller; Fahrradabstellraum; Gegensprechanlage; vollständige Wärmedämmung; Spielplatz; Mehrfamilienhaus; Dusche;

Mehr

Energieausweis
Ausweistyp: bedarfsausweis
Energiebedarf: 48 kWh/(m²*a)
Heizungsart: Zentral
Energieträger: Fernwärme
Wertklasse: A
Warmwasser enthalten: Ja
Gültig bis 2029-12-18

Lage

Löwenberger Straße 5, 10315 Berlin

Berlin Friedrichsfelde ist ein ruhig gelegener und aufstrebender Teil dieser sich ständig wandelnden Stadt. Apropos: In nur 5 Fahrminuten erreichen Sie den Tierpark Berlin mit seinen weitläufigen Parkflächen und in 15 Minuten den Alexanderplatz. So geht entspanntes „Urban Living“!

ÖPNV; S-Bahn 5 und 7, Bus 108, 240, N5, N50, N94.

Ihr BUWOG Vertriebsteam

Joachim Keyling