Erstbezug !Hier findet jeder seinen Platz: 4-Zimmer-Wohnung
Blumeneschenweg 3, 12621 Berlin Objektnummer : 90-1804830010
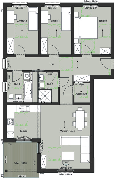
Etage 3
4,0 Zimmer
113,50
2.695,63
Blumeneschenweg 3, 12621 Berlin

Wohlfühlatmosphäre pur- das Objekt bietet durch die verbauten Holzelemente eine angenehme Wohlfühlatmosphäre. Echtholzparkett, Einbauküchen inkl. der Elektrogeräte, eine Kühl-/Gefrierkombi, ein hochwertig gefliestes Bad mit Dusche und/oder Wanne, große Fensterfronten die die Räume mit Licht durchfluten und Balkone/ Terrassen die zum entspannen im Freien einladen, runden das Objekt ab. Gerne können Sie sich vor Ort selbst ein Bild machen- wir freuen uns auf Sie!

Ihr BUWOG Vertriebsteam

Nils Niklas Jan Knaupp

Details & Ausstattung

Etage
3
Zimmer
4,0
Küche

Preisinformation 

Mietpreis (kalt)
2.241,63 €
Betriebskosten
227,00 €
Heizkosten
227,00 €
 Mietpreis (gesamt)
2.695,63 €
 Zzgl. Mietsicherheit
6.724,89 €

Einrichtung

barrierefrei; Balkon; Einbauküche; Mieterkeller; Spielplatz;

Mehr

Energieausweis
Ausweistyp: bedarfsausweis
Energiebedarf: 26 kWh/(m²*a)
Energieträger: Elektro
Wertklasse: A
Warmwasser enthalten: Ja
Gültig bis 2035-12-19

Lage

Blumeneschenweg 3, 12621 Berlin

Kaulsdorf - Vorstadtflaire in Berlin. Die Infrastruktur ist gut - Einkaufsmöglichkeiten, Schulen, Kitas und Ärzte sind in wenigen Minuten erreichbar. Mit der S-Bahn (S5) sowie mehreren Buslinien gelangt man schnell ins Berliner Stadtzentrum. Auch die B1/B5 bietet eine zügige Verbindung in die Innenstadt und ins Umland, sodass Sie vom Großstadtleben nichts verpassen müssen. Erholung findet man in den nahegelegenen Kaulsdorfer Seen und im Wuhletalgrünzug – ideal für Spaziergänge und Freizeitaktivitäten im Grünen.

Ihr BUWOG Vertriebsteam

Nils Niklas Jan Knaupp