Mehrere Erstbezüge! Erfüllen Sie sich den Traum vom Haus
Blumeneschenweg 16A, 12621 Berlin Objektnummer : 90-1804890001
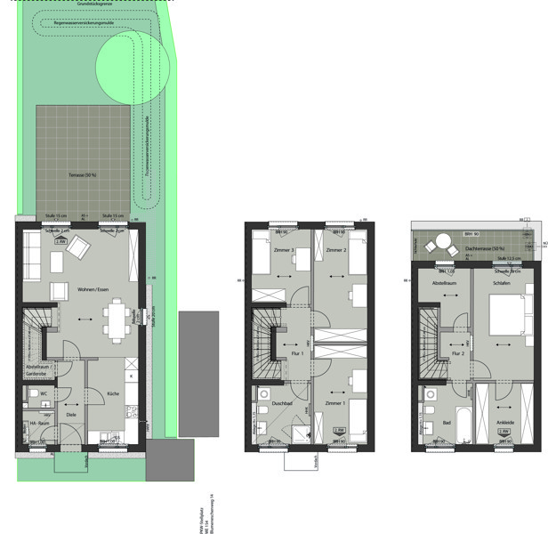
5,0 Zimmer
156,77
3.423,20
Blumeneschenweg 16A, 12621 Berlin

Wohlfühlatmosphäre pur- das Objekt bietet durch die verbauten Holzelemente eine angenehme Wohlfühlatmosphäre. Echtholzparkett, Einbauküchen inkl. der Elektrogeräte, eine Kühl-/Gefrierkombi, ein hochwertig gefliestes Bad mit Dusche und/oder Wanne, große Fensterfronten die die Räume mit Licht durchfluten und Balkone/ Terrassen die zum entspannen im Freien einladen, runden das Objekt ab. Gerne können Sie sich vor Ort selbst ein Bild machen- wir freuen uns auf Sie!

Ihr BUWOG Vertriebsteam

Nils Niklas Jan Knaupp

Details & Ausstattung

Zimmer
5,0
Küche

Preisinformation 

Mietpreis (kalt)
2.814,02 €
Betriebskosten
296,78 €
Heizkosten
312,40 €
 Mietpreis (gesamt)
3.423,20 €
 Zzgl. Mietsicherheit
8.442,06 €

Einrichtung

Mietergarten; Dachterrasse; Getrenntes WC; Einbauküche; Spielplatz;

Mehr

Energieausweis
Ausweistyp: bedarfsausweis
Energiebedarf: 29 kWh/(m²*a)
Energieträger: Elektro
Wertklasse: A
Warmwasser enthalten: Ja
Gültig bis 2035-12-19

Lage

Blumeneschenweg 16A, 12621 Berlin

Kaulsdorf - Vorstadtflaire in Berlin. Die Infrastruktur ist gut - Einkaufsmöglichkeiten, Schulen, Kitas und Ärzte sind in wenigen Minuten erreichbar. Mit der S-Bahn (S5) sowie mehreren Buslinien gelangt man schnell ins Berliner Stadtzentrum. Auch die B1/B5 bietet eine zügige Verbindung in die Innenstadt und ins Umland, sodass Sie vom Großstadtleben nichts verpassen müssen. Erholung findet man in den nahegelegenen Kaulsdorfer Seen und im Wuhletalgrünzug – ideal für Spaziergänge und Freizeitaktivitäten im Grünen.

Ihr BUWOG Vertriebsteam

Nils Niklas Jan Knaupp