Komfortable 2-Zimmer-Wohnung mit Balkon und Einbauküche
Schweriner Straße 37, 01067 Dresden-Wilsdruffer Vorstadt Objektnummer : 3013.36501.0140
Etage 4
2,0 Zimmer
57,19
1.040,10
Schweriner Straße 37, 01067 Dresden-Wilsdruffer Vorstadt
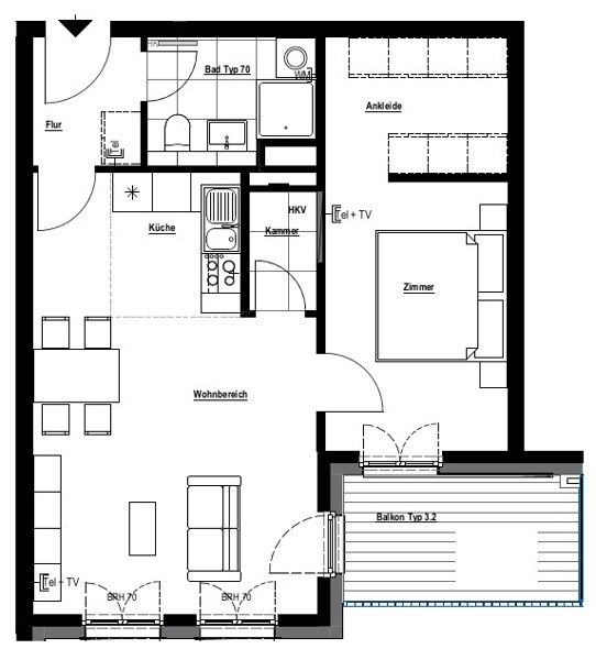
Highlights zur Wohnung:

- praktischer Grundriss
- moderner Parkettboden mit Fußbodenheizung
- hochwertige Einbauküche mit allen E-Geräten
- Bad mit Dusche
- Balkon zum Entspannen im Freien
- Abstellraum mit effizienten Verstaumöglichkeiten in der Wohnung
- Kellerabteil
- begrünter Innenhof
- optionaler Tiefgaragenstellplatz

Bitte beachten Sie, dass wir einen unbefristeten Mietvertrag mit Indexmietvereinbarung schließen.

Ihr BUWOG Vertriebsteam

Celine Schrinner

Details & Ausstattung

Etage
4
Zimmer
2,0
Küche
Aufzug

Preisinformation 

Mietpreis (kalt)
820,10 €
Betriebskosten
146,00 €
Heizkosten
74,00 €
 Mietpreis (gesamt)
1.040,10 €
 Zzgl. Mietsicherheit
2.460,30 €

Einrichtung

Aufzug, Balkon, Duschbad, Einbauküche, Hausmeister, Keller, Klingel mit Sprechanlage, Parkett, Waschmaschinenanschluss, Wohnküche,

Mehr

Energieausweis
Ausweistyp: bedarfsausweis
Energiebedarf: 64.00 kWh/(m²*a)
Heizungsart: Fußboden
Energieträger: Fernwärme
Wertklasse: B
Warmwasser enthalten: Ja
Gültig bis 16.09.2028 00:00:00

Lage

Schweriner Straße 37, 01067 Dresden-Wilsdruffer Vorstadt
Dresden-Wilsdruffer Vorstadt ist ein zentral gelegener Stadtteil von Dresden und ein historisches Viertel, das durch seine vielfältige Architektur, seine kulturellen Sehenswürdigkeiten und seine lebendige Atmosphäre geprägt ist. Neben den kulturellen Attraktionen gibt es auch eine Vielzahl von Einkaufsmöglichkeiten, Restaurants, Cafés und Bars, die zum Verweilen einladen. Der Stadtteil liegt zudem unweit des Dresdner Hauptbahnhofs und des Altstadtzentrums. Die Wilsdruffer Vorstadt ist gut an das öffentliche Verkehrsnetz angebunden, was es einfach macht, sich in der Stadt zu bewegen und auch die umliegenden Stadtteile zu erkunden.

Ihr BUWOG Vertriebsteam

Celine Schrinner