Lichtdurchflutete 4-Zimmer-Wohnung mit zwei Balkonen, neuer Einbauküche & Wohlfühlambiente
Amely-Bölte-Straße 4, 01067 Dresden-Wilsdruffer Vorstadt Objektnummer : 3201.31960.2121
Etage 3
4,0 Zimmer
94,64
1.624,58
Amely-Bölte-Straße 4, 01067 Dresden-Wilsdruffer Vorstadt
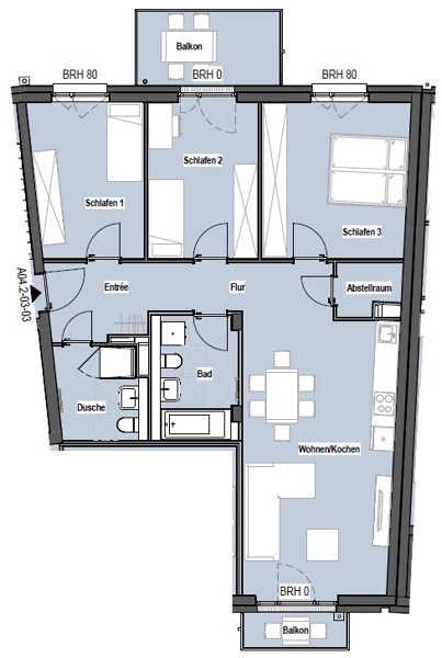
Genießen Sie erstklassigen Wohnkomfort in dieser großzügigen Etagenwohnung, die mit edlem Parkettboden in sämtlichen Wohn- und Schlafbereichen für eine stilvolle Atmosphäre sorgt. Große Fenster schaffen in allen Räumen ein einladendes, lichtdurchflutetes Ambiente. Die offene Küche ist mit einer modernen, neuen Einbauküche ausgestattet und bildet das Herzstück des Wohnbereichs. Praktische Details wie ein Abstellraum sorgen für Ordnung und zusätzlichen Stauraum. Drei großzügig geschnittene Schlafzimmer – eines davon mit Zugang zu einem der beiden sonnigen Balkone – bieten viel Platz für individuelle Rückzugsmöglichkeiten. Das elegante Bad mit Badewanne und WC sowie ein zusätzliches Gäste-Bad mit Dusche und WC steigern den Wohnkomfort. Ein Waschmaschinenanschluss in der Wohnung sowie ein separater Kellerraum runden das Angebot ab.

Das Wohnquartier „Schützengarten“ in unmittelbarer Nähe zum historischen Dresdner Stadtzentrum bietet 403 moderne und hochwertig ausgestattete 1- bis 7-Zimmerwohnungen in bester Lage. Wo früher ein einfacher Plattenbau stand, befindet sich heute ein Ensemble hochwertiger Stadthäuser mit der Wiederaufnahme des ehemaligen Schützengartens als ruhiger und begrünter Innenbereich des Viertels. Die Ausstattung der Wohnungen lässt keine Wünsche offen: Weiß gespachtelte Zimmerwände in Feinputz, Echtholz-Eichenparkettboden mit Fußbodenheizung, bodentiefe Isolierfenster, teilweise elektrische Außenrollläden, CAT-7 Verkabelung, digitale Zentralsteuerung der Fußbodenheizung, der Rollläden sowie der Videogegensprechanlage, hochwertige Einbauküchen mit Markengeräten, hell geflieste Bäder mit Markenarmaturen und viele Annehmlichkeiten mehr. Eine moderne Aufzugsanlage bringt Sie bequem in Ihre gewünschte Etage. Überzeugen Sie sich persönlich von der hohen Qualität und der angenehmen Wohnatmosphäre bei einem Besichtigungstermin vor Ort.

Details & Ausstattung

Etage
3
Zimmer
4,0
Küche

Preisinformation 

Mietpreis (kalt)
1.299,06 €
Betriebskosten
235,85 €
Heizkosten
89,67 €
 Mietpreis (gesamt)
1.624,58 €
 Zzgl. Mietsicherheit
3.890,00 €

Einrichtung

Balkon, Duschbad, Einbauküche, Gäste-WC, Hausmeister, Kabel-TV, Keller, Klingel mit Sprechanlage, Parkett, Vollbad, Waschmaschinenanschluss, Wohnküche,

Mehr

Energieausweis
Ausweistyp: bedarfsausweis
Energiebedarf: 82.00 kWh/(m²*a)
Heizungsart: Fernwärme
Energieträger: Fernwärme
Wertklasse: C
Warmwasser enthalten:
Gültig bis 08.09.2034 00:00:00

Lage

Amely-Bölte-Straße 4, 01067 Dresden-Wilsdruffer Vorstadt
Dresden. Die beste Entscheidung - mit diesem Titel wirbt die sächsische Landeshauptstadt mit ca. 500.000 Einwohnern aus gutem Grund: Dresden wird aufgrund seiner barockgestalteten Viertel, seinen zahlreichen Sehenswürdigkeiten wie der Semperoper oder dem Zwinger und seinen abwechslungsreichen Kunstsammlungen auch gerne als Elbflorenz bezeichnet. Dresden zählt zu den grünsten Städten Europas. Über 60 Prozent der Stadtfläche sind Wald- und Grünflächen. Die Stadt im Elbtal liegt eingebettet in der hügeligen Landschaft zwischen den Weinbergen im Südwesten und den Höhenlagen im Nordosten. Wie ein Gürtel ziehen sich die Elbauen durch die Stadt und umsäumen den Fluss mit breiten Wiesen. Dresden ist Deutschlands Stadt mit der größten Forschungsdichte mit insgesamt 45 Forschungseinrichtungen und Sitz der einzigen Technischen Universität mit Exzellenz-Auszeichnung in Ostdeutschland. Dresden gehört zu den wachstumsstärksten Regionen der Bundesrepublik. Großes Potential haben die Zukunftsbranchen Mikroelektronik und Informationstechnologie, Nanotechnologie, Neue Werkstoffe, Biotechnologie und Erneuerbare Energien. Darüber hinaus sorgen Firmen in Handwerk, Tourismus, Maschinen- und Anlagenbau und Kreative für Wirtschafts- und Anziehungskraft. Dresden ist ein wichtiger Verkehrsknotenpunkt in der Region, über die A13 gelangt man nach Berlin im Norden, über die A17 nach Prag im Süden und die A4 führt Richtung Görlitz im Osten sowie Frankfurt am Main im Westen. Auch per Schiene, zu Wasser oder in der Luft verfügt Dresden über eine hervorragende Verkehrsinfrastruktur in alle größeren deutschen und europäischen Städte.