Moderne 3-Raum-Wohnung mit Einbauküche und Balkon
Schweriner Straße 45, 01067 Dresden Objektnummer : 90-1797100004
Etage 1
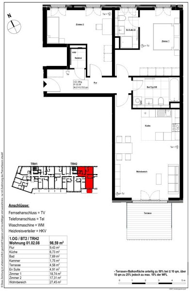
3,0 Zimmer
97,54
1.477,63
Schweriner Straße 45, 01067 Dresden

Highlights zur Wohnung:

- praktischer Grundriss

- moderner Parkettboden mit Fußbodenheizung

- hochwertige Einbauküche mit allen E-Geräten

- schickes Bad mit Dusche + Bad mit Wanne

- Terrasse zum Entspannen im Freien

- Abstellkammer mit effizienten Verstaumöglichkeiten in der Wohnung

- moderne Videosprechanlage

- Aufzug für barrierefreies Erreichen der Wohnung

- begrünter Innenhof mit Spielplatz & Fahrradständern

- optionaler Tiefgaragenstellplatz

Bitte beachten Sie, dass wir einen unbefristeten Mietvertrag mit Indexmietvereinbarung schließen.

Ihr BUWOG Vertriebsteam

Celine Schrinner

Details & Ausstattung

Etage
1
Zimmer
3,0
Küche
Aufzug

Preisinformation 

Mietpreis (kalt)
1.154,48 €
Betriebskosten
244,15 €
Heizkosten
79,00 €
 Mietpreis (gesamt)
1.477,63 €
 Zzgl. Mietsicherheit
3.463,44 €

Einrichtung

Aufzug; Terrasse; Einbauküche; offene Küche; Spüle; E-Herd; Abstellraum; Parkett; Fußbodenheizung; Zentralheizung; Fernwärme; Rollläden elektrisch; Isolierverglasung; Mieterkeller; Fahrradabstellraum; Gegensprechanlage; Waschmaschinenanschluss; vollständige Wärmedämmung; Mehrfamilienhaus; Badewanne eingemauert; Dusche;

Mehr

Energieausweis
Ausweistyp: bedarfsausweis
Energiebedarf: 64 kWh/(m²*a)
Heizungsart: Zentral
Energieträger: Fernwärme
Wertklasse: B
Warmwasser enthalten: Ja
Gültig bis 2028-09-17

Lage

Schweriner Straße 45, 01067 Dresden

Dresden-Wilsdruffer Vorstadt ist ein zentral gelegener Stadtteil von Dresden und ein historisches Viertel, das durch seine vielfältige Architektur, seine kulturellen Sehenswürdigkeiten und seine lebendige Atmosphäre geprägt ist. Neben den kulturellen Attraktionen gibt es auch eine Vielzahl von Einkaufsmöglichkeiten, Restaurants, Cafés und Bars, die zum Verweilen einladen. Der Stadtteil liegt zudem unweit des Dresdner Hauptbahnhofs und des Altstadtzentrums. Die Wilsdruffer Vorstadt ist gut an das öffentliche Verkehrsnetz angebunden, was es einfach macht, sich in der Stadt zu bewegen und auch die umliegenden Stadtteile zu erkunden.

Ihr BUWOG Vertriebsteam

Celine Schrinner