Loggia-Traum mit Stil und Komfort: Lichtdurchflutete Wohnung mit moderner Küche & TG-Stellplatz
Gref-Völsing-Strasse 6, 60314 Frankfurt-Ostend Objektnummer : 3008.33100.0246
Etage 3
2,0 Zimmer
66,36
1.598,35
Gref-Völsing-Strasse 6, 60314 Frankfurt-Ostend
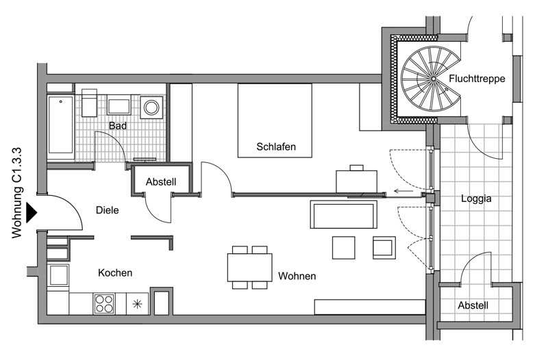
Genießen Sie Wohnkomfort auf hohem Niveau: Ihre Etagenwohnung besticht durch lichtdurchflutete Räume mit edlem Parkett und stilvollen Malervlies-Wänden. Die offene Markenküche mit modernen Einbaugeräten lädt zu kulinarischen Momenten ein und geht harmonisch in den Wohnbereich über. Ein praktischer Abstellraum sorgt für zusätzlichen Stauraum. Das großzügige Schlafzimmer begeistert mit direktem Zugang zur weitläufigen Loggia – ein Highlight für entspannte Stunden im Freien. Das elegante Bad verwöhnt mit Badewanne und WC. Ein Waschmaschinenanschluss in der Wohnung schafft extra Komfort. Ein geräumiger Tiefgaragenstellplatz rundet dieses exklusive Angebot ab.

Das „Schwedler Home“ bereichert das Ostend durch 392 attraktive Mietwohnungen, verteilt auf drei Gebäude mit bis zu 7 Etagen, die alle per Aufzug zu erreichen sind. Außerdem findet auf dem Gelände eine neue Kindertagesstätte ihr Zuhause.
Zu der hohen Wohnqualität trägt die moderne Ausstattung bei: Jede Wohnung verfügt z.B. über einen Balkon, Terrasse oder Loggia. Weitere Ausstattungshighlights sind unter anderem Fußbodenheizung mit Eichen-Parkettboden, Marken-Einbauküchen, dreifach verglaste Isolierfenster. Der KfW 70-Standard bietet maximale Energie-Effizienz in Verbindung mit tollem Klima.
Die modern gefliesten Bäder mit Markenarmaturen, der Breitbandkabelanschluss in fast allen Räumen und viele weitere Annehmlichkeiten runden das Angebot ab, um sich hier zu Hause zu fühlen.

Details & Ausstattung

Etage
3
Zimmer
2,0
Küche
Aufzug

Preisinformation 

Mietpreis (kalt)
1.207,75 €
Betriebskosten
188,00 €
Heizkosten
87,60 €
 Mietpreis (gesamt)
1.598,35 €
 Zzgl. Mietsicherheit
3.620,00 €

Einrichtung

Aufzug, Einbauküche, Hausmeister, Keller, Klingel mit Sprechanlage, Loggia, Parkett, Stellplatz, Vollbad, Waschmaschinenanschluss, Wohnküche,

Mehr

Energieausweis
Ausweistyp: bedarfsausweis
Energiebedarf: 49.00 kWh/(m²*a)
Heizungsart: Fernwärme
Energieträger: Fernwärme
Wertklasse: A
Warmwasser enthalten:
Gültig bis 15.05.2028 00:00:00

Lage

Gref-Völsing-Strasse 6, 60314 Frankfurt-Ostend
In den letzten zehn Jahren hat sich das Ostend stetig weiterentwickelt. Vom ehemaligen Industrieviertel über das Zentrum für kreative Köpfe bis hin zum beliebten Wohn- und Bürostandort für alle, die eine ausgeglichene Work- / Life-Balance suchen.
Genauso wie die Umgebung selbst, so hat sich auch die Infrastruktur stetig entwickelt und verbessert. So finden Sie in unmittelbarer Umgebung ein großes EDEKA Check-In-Center, den Ost-Bahnhof mit seinen vielen Anbindungen sowohl nach Frankfurt als auch in die Umgebung. Die nahe gelegene Hanauer Landstraße ist schon seit jeher bekannt für alle namhaften Autohäuser, Möbelhäuser, Baumärkte sowie viele kreative Gastronomie-Angebote.