Exklusives Wohnen in Sachsenhausen: geräumige 4-Zimmer-Wohnung mit weitläufiger Dachterasse
Stresemannallee 53, 60596 Frankfurt Objektnummer : 90-1789340021
Etage 5
4,5 Zimmer
140,40
3.159,65
Stresemannallee 53, 60596 Frankfurt

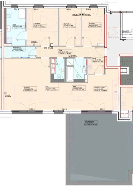
Erleben Sie exklusives Wohnen auf höchstem Niveau: Diese außergewöhnlich großzügige Etagenwohnung mit ca. 140m² Wohnfläche vereint elegantes Design, durchdachte Raumaufteilung und erstklassigen Wohnkomfort. In sämtlichen Wohn- und Schlafräumen sorgt hochwertiges Parkett in Kombination mit angenehmer Fußbodenheizung für eine warme, stilvolle Atmosphäre. Große Fensterflächen durchfluten die Räume mit Tageslicht und schaffen ein offenes, repräsentatives Wohngefühl.

Der weitläufige Wohn- und Essbereich mit offener Küche bildet das Herzstück der Wohnung und bietet direkten Zugang zur großzügigen Dachterrasse – ein exklusiver Rückzugsort mit viel Platz zum Entspannen und Genießen. Mehrere komfortable Schlafzimmer eröffnen flexible Nutzungsmöglichkeiten als Eltern-, Kinder-, Gäste- oder Arbeitszimmer. Das Hauptschlafzimmer wird durch einen praktischen Ankleidebereich ergänzt.

Drei hochwertig ausgestattete Bäder – eines mit Badewanne, Dusche und WC, das andere mit Dusche und WC – bieten höchsten Komfort für die ganze Familie und Gäste. Ein zusätzlicher Hauswirtschaftsraum mit Waschmaschinenanschluss sorgt für praktische Funktionalität im Alltag.

Abgerundet wird dieses exklusive Wohnangebot durch die Möglichkeit zur Anmietung von direkt anliegenden Tiefgaragenstellplätzen.

Es erwarten Sie 6 Mehrfamilienhäuser mit insgesamt 132 Wohnungen. Jede Wohnung verfügt, je nach Etage, entweder über einen eigenen Gartenbereich, einen Balkon, Loggia oder eine Dachterrasse. Die Ausstattung lässt keine Wünsche offen: Dreifachverglaste Schallschutzfenster, hochwertige und vollständig ausgestattete Einbauküchen, Malervlies als Wandverkleidung, modern geflieste Bäder mit Markenarmaturen, Breitbandkabelanschluss in allen Räumen und viele Annehmlichkeiten mehr. Das Projekt wurde nach KFW-70-Standard erbaut, die Verbrauchskosten der Heizung können somit spürbar verringert werden. Die Wohnräume sind zusätzlich mit einer zentralen Be- und Entlüftungsanlage ausgestattet, was den Energieverbrauch weiter reduziert. Der Außenbereich wird intensiv begrünt, so dass hier ein eigener, kleiner Park vor der Haustür entsteht.

Ihr BUWOG Vertriebsteam

Justin Scharne

Details & Ausstattung

Etage
5
Zimmer
4,5
Küche
Aufzug

Preisinformation 

Mietpreis (kalt)
2.614,25 €
Betriebskosten
372,40 €
Heizkosten
173,00 €
 Mietpreis (gesamt)
3.159,65 €
 Zzgl. Mietsicherheit
7.842,75 €

Einrichtung

Aufzug; Dachterrasse; Gäste WC; Einbauküche; offene Küche; Spüle; E-Herd; Abstellraum; Parkett; tapeziert; Fußbodenheizung; Zentralheizung; Fernwärme; Rollläden elektrisch; Isolierverglasung; Mieterkeller; Gegensprechanlage; Waschmaschinenanschluss; vollständige Wärmedämmung; Spielplatz; EG-Wohnung; Mehrfamilienhaus; Badewanne eingemauert; Dusche;

Mehr

Energieausweis
Ausweistyp: bedarfsausweis
Energiebedarf: 88 kWh/(m²*a)
Heizungsart: Zentral
Energieträger: Fernwärme
Wertklasse: C
Warmwasser enthalten: Ja
Gültig bis 2035-05-15

Lage

Stresemannallee 53, 60596 Frankfurt

Genießen Sie die vielen Vorzüge Sachsenhausens, welche diesen Stadtteil zu einem der Beliebtesten in Frankfurt machen. Auf unserer Seite, „Dribb de Bach“, wie man die südliche Mainseite im Frankfurterischen nennt, erwarten Sie entlang des Mains viele bekannte Sehenswürdigkeiten. Das Objekt befindet sich direkt bei der S-Bahnhaltestelle „Stresemannallee“, nur eine Station vom Knotenpunkt „Südbahnhof“ entfernt. Wer ausgedehnte Spaziergänge oder Fahrradtouren mag, kann sich entlang des Mains austoben, welcher nur wenige Gehminuten entfernt liegt. Einkaufsmöglichkeiten befinden sich ebenfalls um die Ecke. Weiterhin gibt es in Sachsenhausen fünf Grundschulen, drei Gymnasien, zwei Realschulen und eine Hauptschule sowie zahlreiche Kindertagesstätten. Werden Sie ein Teil davon.

Ihr BUWOG Vertriebsteam

Justin Scharne