Größzügige 3-Zimmer-Wohnung mit gehobener Austattung und ruhiger Lage
Goebensiedlung 14, 56077 Koblenz Objektnummer : 90-1764670011
Etage 2
3,0 Zimmer
101,11
1.281,23
Goebensiedlung 14, 56077 Koblenz

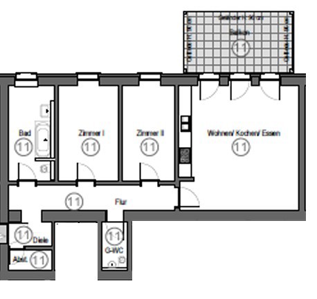
Diese charmante 3-Zimmer-Wohnung mit Balkon überzeugt durch ihre hellen, freundlich gestalteten Wohn- und Schlafräume, die mit hochwertigem Laminat und angenehmer Fußbodenheizung ein besonders wohnliches Ambiente schaffen. Der Kochbereich bietet direkten Zugang zum Balkon und eignet sich ideal für geselliges Beisammensein. Ein praktischer Abstellraum sorgt für zusätzlichen Stauraum.

Das großzügige Schlafzimmer überzeugt durch seine angenehme Größe und Helligkeit. Das Tageslichtbad ist mit einer Duschbadewanne und WC ausgestattet, zusätzlich steht ein separates Gäste-WC zur Verfügung.

Ein Außenstellplatz oder eine Garage kann optional angemietet werden und rundet dieses attraktive Wohnangebot ab.

Es erwarten Sie 106 moderne Wohnungen in insgesamt 3 Häusern in energieeffizienter Bauweise nach KFW 85 – Standard. Der familienfreundlich gestaltete Innenhof lädt mit seinen 3 Spielplätzen und Ruhebereichen zum Verweilen ein. Die Ausstattung der Wohnungen lässt keine Wünsche offen:

Hochwertiger Fliesenboden mit Fußbodenheizung, Vollwärmeschutz mit dreifacher Isolierverglasung und bodentiefen Fenstern, elektrische Rollläden, deckenintegrierte LED-Spots, modern geflieste Bäder mit Markenarmaturen, Breitbandkabelanschluss in allen Räumen und viele Annehmlichkeiten mehr. Alle Wohnungen verfügen über einen großzügigen Außenbereich in Form eines Balkons oder einer Terrasse. Eine architektonische Besonderheit stellen die Außenaufzüge dar, über welche Sie bequem Ihre Etage erreichen.

Ihr BUWOG Vertriebsteam

Justin Scharne

Details & Ausstattung

Etage
2
Zimmer
3,0
Küche
Aufzug

Preisinformation 

Mietpreis (kalt)
1.012,68 €
Betriebskosten
236,55 €
Heizkosten
32,00 €
 Mietpreis (gesamt)
1.281,23 €
 Zzgl. Mietsicherheit
3.038,04 €

Einrichtung

Aufzug; Balkon; Getrenntes WC; Einbauküche; offene Küche; Abstellraum; Parkett; Fußbodenheizung; Fernwärme; Mieterkeller; Gegensprechanlage;

Lage

Goebensiedlung 14, 56077 Koblenz

Den GoebenPark finden Sie im Westen von Koblenz, wenige Autominuten von der Innenstadt entfernt, erstreckt sich auf der rechten Rheinseite, oberhalb eines Felsmassivs des Stadtteils Asterstein in einer ruhigen Wohngegend. Der in jüngster Zeit immer attraktiver werdende Stadtteil ist von einer aufgelockerten Wohnbebauung geprägt. Neben dem im Westen errichteten Einfamilienhaus-Wohnpark, zahlreichen Ein-/ Zweifamilienhäusern verfügt der Stadtteil über zahlreiche Grünflächen sowie über eine ca. 20.000 m² große Parkanlage. Sparkasse, Bäckerei, Lebensmittelmarkt (Netto), Metzgerei, Schulen und sonstige Einrichtungen des täglichen Bedarfs sind in wenigen Minuten erreichbar. Die Innenstadt von Koblenz erreichen Sie in ca. 10 Autominuten. Die Anbindung an den ÖPNV erfolgt nur wenige Meter vom GoebenPark entfernt.

Ihr BUWOG Vertriebsteam

Justin Scharne