1-Raum-Erstbezug mit hochwertiger Einbauküche und Duschbad
Atriumstraße 5, 04315 Leipzig-Neustadt-Neuschönefeld Objektnummer : 3508.36316.0250
Etage 5
1,0 Zimmer
31,52
625,67
Atriumstraße 5, 04315 Leipzig-Neustadt-Neuschönefeld
Highlights zur Wohnung:
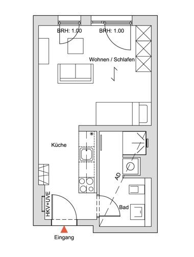
- praktischer, durchdachter Grundriss
- edles Echtholzparkett mit Fußbodenheizung
- größtenteils bodentiefe Fenster mit Rollläden und Dreifachverglasung
- hochwertige Einbauküche mit allen E-Geräten (Einbau erfolgt noch)
- Bad mit Dusche
- Marken-Armaturen
- Handtuchheizkörper im Bad
- Videosprechanlage
- Aufzug für barrierefreies Erreichen der Wohnung
- optionaler Tiefgaragenstellplatz
- begrünter Innenhof mit Spielplatz, Fahrradstellplätzen und Ruhezonen
- Läden im Erdgeschoss

Bitte beachten Sie, dass wir einen unbefristeten Mietvertrag mit Indexmietvereinbarung schließen.
Besuchen Sie gern unsere Projektwebsite und finden Sie die perfekte Wohnung für Ihre Bedürfnisse: atrium-quartier.buwog.com

Ihr BUWOG Vertriebsteam

Amélie Nguyen

Details & Ausstattung

Etage
5
Zimmer
1,0
Küche
Aufzug

Preisinformation 

Mietpreis (kalt)
515,35 €
Betriebskosten
63,04 €
Heizkosten
47,28 €
 Mietpreis (gesamt)
625,67 €
 Zzgl. Mietsicherheit
1.546,05 €

Einrichtung

Aufzug, Duschbad, Einbauküche, Erstbezug, Hausmeister, Keller, Klingel mit Sprechanlage, Parkett, Waschmaschinenanschluss,

Mehr

Energieausweis
Ausweistyp: bedarfsausweis
Energiebedarf: 60.00 kWh/(m²*a)
Heizungsart: Fußboden
Energieträger: Fernwärme
Wertklasse: B
Warmwasser enthalten: Ja
Gültig bis 22.07.2031 00:00:00

Lage

Atriumstraße 5, 04315 Leipzig-Neustadt-Neuschönefeld
Das ATRIUM Quartier liegt im lebendigen Leipziger Stadtteil Neustadt-Neuschönefeld, einem Viertel im Wandel, das mit einer spannenden Mischung aus sanierten Altbauten und modernen Neubauten begeistert. Wer hier wohnt, profitiert von urbanem Flair, kurzen Wegen und einem vielseitigen Umfeld.

Im Erdgeschoss des Hauses erwarten Sie charmante Leipziger Läden sowie ein Supermarkt, der eine komfortable Nahversorgung direkt vor der Haustür ermöglicht. In der unmittelbaren Umgebung befinden sich Restaurants, Cafés, Kitas und Schulen.

Die Verkehrsanbindung ist exzellent: Straßenbahn- und Bushaltestellen sind fußläufig erreichbar und bringen Sie in wenigen Minuten zum Hauptbahnhof, ebenso schnell in die Innenstadt oder zur Universität. Mit dem Auto sind die B2 sowie der Flughafen Halle/Leipzig schnell erreichbar.

Wer zwischendurch Ruhe sucht, findet diese im nahegelegenen Stadtteilpark Rabet – mit großzügigen Grünflächen, Spielplätzen und Sportangeboten, die zum Verweilen einladen.

Das ATRIUM Quartier vereint damit urbanen Komfort, hervorragende Infrastruktur und grüne Erholungsräume – eine Lage, die in Leipzig kaum Wünsche offenlässt.

Ihr BUWOG Vertriebsteam

Amélie Nguyen