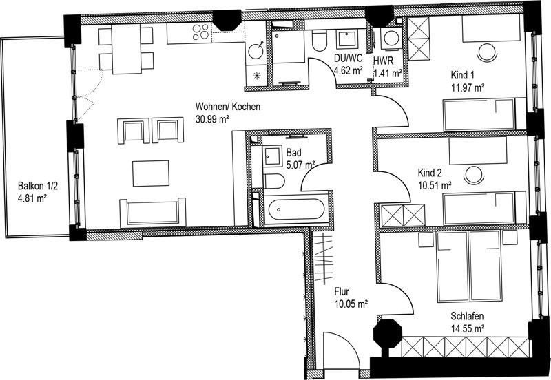
Familienfreundliche 4-Zimmer-Wohnung mit 2 Bädern, EBK und großem Balkon
Goldschmidtstraße 45, 04103 Leipzig Objektnummer : 90-1794340022
Etage 2
4,0 Zimmer
93,43
1.698,87
Goldschmidtstraße 45, 04103 Leipzig

Highlights zur Wohnung:

- praktischer Grundriss

- edles Echtholzparkett mit Fußbodenheizung

- hochwertige Einbauküche mit allen E-Geräten

- Bad mit Dusche + Bad mit Wanne

- Praktische Einbauschränke

- großer Balkon zum Entspannen im Freien

- Rollläden

- Videosprechanlage

- Abstellraum in der Wohnung

- Mieterkeller

- Aufzug für barrierefreies Erreichen der Wohnung

- optionaler Tiefgaragenstellplatz

- begrünter Innenhof mit Spielplatz & Fahrradstellplätzen

Bitte beachten Sie, dass wir einen unbefristeten Mietvertrag mit Indexmietvereinbarung schließen.

Ihr BUWOG Vertriebsteam

Amelie Nguyen

Details & Ausstattung

Etage
2
Zimmer
4,0
Küche
Aufzug

Preisinformation 

Mietpreis (kalt)
1.227,87 €
Betriebskosten
261,00 €
Heizkosten
210,00 €
 Mietpreis (gesamt)
1.698,87 €
 Zzgl. Mietsicherheit
3.683,61 €

Einrichtung

Aufzug; Balkon; Einbauküche; große Wohnküche; Parkett; Fußbodenheizung; Fernwärme; Mieterkeller; Videosprechanlage; vollständige Wärmedämmung; Spielplatz; Mehrfamilienhaus; Dusche;

Mehr

Energieausweis
Ausweistyp: bedarfsausweis
Energiebedarf: 98 kWh/(m²*a)
Heizungsart: Fernwärme
Energieträger: Fernwärme
Wertklasse: C
Warmwasser enthalten: Ja
Gültig bis 2035-09-17

Lage

Goldschmidtstraße 45, 04103 Leipzig

Das Objekt befindet sich in zentraler Lage nahe der Leipziger Innenstadt im gefragten Graphischen Viertel. Der Stadtteil verbindet urbanes Leben mit historischer Prägung und zählt zu den beliebten Wohnlagen Leipzigs. Die Universität Leipzig ist in kurzer Zeit erreichbar und unterstreicht die Attraktivität des Standorts.

Die Nahversorgung ist hervorragend: Ein Bäcker sowie ein Supermarkt befinden sich direkt im Gebäude, weitere Angebote des täglichen Bedarfs sind fußläufig erreichbar.

Durch die Straßenbahnhaltestelle in unmittelbarer Nähe besteht eine sehr gute Anbindung an den öffentlichen Personennahverkehr. Die Innenstadt, der Hauptbahnhof sowie weitere Stadtteile sind schnell und unkompliziert erreichbar.

Die Lage überzeugt durch ihre zentrale Ausrichtung, kurze Wege und eine ausgewogene Mischung aus Urbanität und Wohnqualität.

Ihr BUWOG Vertriebsteam

Amelie Nguyen