Lichtdurchflutete 3-Zi.-Wohnung mit Balkon, Einbauküche mit Kochinsel und zwei Bädern!
An den Grachten 7, 55120 Mainz Objektnummer : 90-1790180008
Etage 3
3,0 Zimmer
83,33
1.761,29
An den Grachten 7, 55120 Mainz

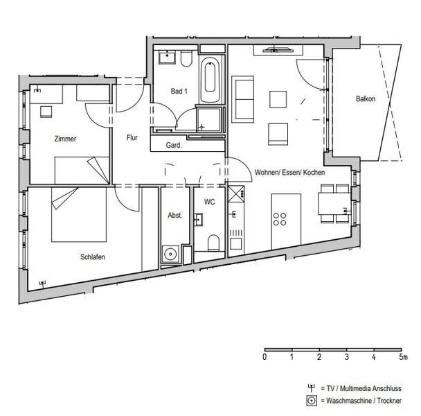
Willkommen in dieser exklusiver Etagenwohnung, die durch lichtdurchflutete Wohn- und Schlafräume mit edlem Parkett und behaglicher Fußbodenheizung überzeugt. Eine offene Markenküche mit hochwertigen Einbaugeräten lässt keine Wünsche offen und verleiht dem Wohnbereich ein modernes, stilvolles Flair. Ein praktischer Abstellraum sorgt für zusätzlichen Stauraum. Das großzügige Schlafzimmer bietet direkten Zugang zum weitläufigen Balkon – ein echtes Highlight, das höchsten Wohnkomfort garantiert. Die eleganten Bäder sind mit Badewanne, Dusche und WC ausgestattet, während ein eigener Waschmaschinenanschluss den Alltag erleichtert. Abgerundet wird dieses exklusive Angebot durch die Möglichkeit zur Anmietung eines komfortablen Tiefgaragenstellplatzes.

Es erwarten Sie 181 moderne Wohnungen in insgesamt 12 Häusern. Im Erdgeschoss befindet sich ein toller REWE-Markt sowie ein großzügiger, moderner Kindergarten. Die Ausstattung der Wohnungen lässt keine Wünsche offen: Hochwertiger Eichenparkettboden mit Fußbodenheizung, Schall- und wärmeisolierte Kunststofffenster, hochwertige und voll ausgestattete Marken-Einbauküche, Malervlies an den Wänden, modern geflieste Bäder mit Markenarmaturen, Gegensprechanlage mit Videofunktion, Breitbandkabelanschluss und viele Annehmlichkeiten mehr. Fast alle Wohnungen verfügen über einen großzügigen Außenbereich in Form einer Loggia, einer Terrasse (auch Dachterrasse) oder eines Balkons.

Ihr BUWOG Vertriebsteam

Justin Scharne

Details & Ausstattung

Etage
3
Zimmer
3,0
Küche
Aufzug

Preisinformation 

Mietpreis (kalt)
1.342,54 €
Betriebskosten
270,75 €
Heizkosten
148,00 €
 Mietpreis (gesamt)
1.761,29 €
 Zzgl. Mietsicherheit
4.027,62 €

Einrichtung

Aufzug; Balkon; Bodengleiche Dusche; Getrenntes WC; Einbauküche; offene Küche; Spüle; Einbauschränke; Abstellraum; Laminat; Fußbodenheizung; Zentralheizung; Fernwärme; Rollläden elektrisch; Schallschutzverglasung; Mieterkeller; Fahrradabstellraum; Gegensprechanlage; Spielplatz; Mehrfamilienhaus;

Mehr

Energieausweis
Ausweistyp: bedarfsausweis
Energiebedarf: 58 kWh/(m²*a)
Heizungsart: Zentral
Energieträger: Fernwärme
Wertklasse: B
Warmwasser enthalten: Ja
Gültig bis 2028-10-16

Lage

An den Grachten 7, 55120 Mainz

Eines der spannendsten Neubauprojekte im Rhein-Main-Gebiet ist sicherlich das Zollhafen-Areal direkt am Rhein. Hier entstehen bis 2025 Wohnraum für bis zu 3.000 Menschen sowie ca. 4.000 neue Arbeitsplätze.

Doch auch hier bleibt Mainz seiner behutsamen Veränderung treu – die historische Hafenatmosphäre soll bewahrt werden, gleichzeitig entsteht hier ein vitales, pulsierendes Quartier in Citylage für die Landeshauptstadt Mainz. Das Zollhafengebiet verknüpft die Neustadt mit dem Rhein, die naheliegenden, öffentlichen Verkehrsmittel (u.a. S-Bahn-Station Mainz-Nord) ermöglichen eine schnelle und ideale Erreichbarkeit der Mainzer Innenstadt sowie der berühmten Johannes-Gutenberg-Universität. Auch im Zollhafengebiet vor Ort gibt es eine Vielzahl an tollen Einkaufs-, Freizeit- und Gastronomieangeboten.

Ihr BUWOG Vertriebsteam

Justin Scharne