Vielen Dank!
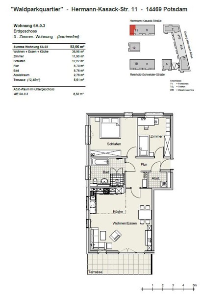
Ihr neues Zuhause im Waldparkquartier ist bestens ausgestattet, liegt direkt am Park und eröffnet Ihnen alle Freiheiten, das Leben im entspannten Bornstedt zu genießen. Vom kleinen Einzimmer-Nest bis zur großzügigen Vierzimmer-Wohnung mit Dachterrasse – ziehen Sie ein, wir freuen uns auf Sie!
 
                    
             
                    
             
                    
            