*Inkl. Baustellenrabatt* Großzügige 4-Zimmer-Wohnung mit sonniger Terrasse und moderner Küche
Eugen-Bolz-Straße 2, 73525 Schwäbisch Gmünd Objektnummer : 3011.30735.0071
4,0 Zimmer
115,60
1.549,55
Eugen-Bolz-Straße 2, 73525 Schwäbisch Gmünd
*Der angezeigte Mietpreis enthält einen zeitlich befristeten Baustellenrabatt (6 Monate ab Mietbeginn). Danach beträgt die Kaltmiete 1.557,13 €.*

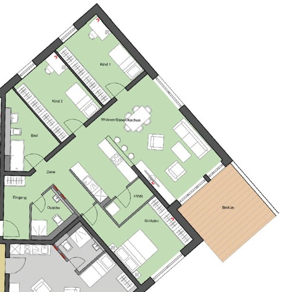
Erleben Sie modernes Wohnen auf höchstem Niveau in dieser großzügigen Erdgeschosswohnung. Sämtliche Wohn- und Schlafräume beeindrucken mit edlem Parkett und einer freundlichen, lichtdurchfluteten Atmosphäre. Herzstück ist der offene Küchenbereich mit einer komplett neuen, eleganten Einbauküche – ideal für geselliges Beisammensein. Ein praktischer Abstellraum sorgt für zusätzlichen Stauraum und Ordnung. Die drei hellen Schlafzimmer punkten durch ihre komfortable Größe und flexible Nutzungsmöglichkeiten. Das geschmackvolle Bad bietet eine Badewanne und WC, ergänzt durch ein Gäste-Duschbad mit WC. Ein eigener Waschmaschinenanschluss erhöht den Nutzungskomfort. Die sonnenverwöhnte Terrasse lädt zum Entspannen ein. Optional steht ein Tiefgaragenstellplatz zur Verfügung.
Erfahren Sie mehr auf unserer Projektseite: https://eutighofer-tor.buwog.com/

Auf dem ehemaligen „Brücke“-Areal der Gmünder Weststadt entsteht das Neubau-Ensemble „Eutighofer Tor“ aus 7 modernen Wohn- und Geschäftshäusern mit insgesamt 88 Wohnungen. Die Ausstattung der Wohnungen lässt keine Wünsche offen: Eichenparkettboden mit Fußbodenheizung, dreifachverglaste Schallschutzfenster, hochwertige und vollständig ausgestattete Einbauküchen mit Markengeräten, Malerflies als Wandverkleidung, modern geflieste Bäder mit Markenarmaturen, Gegensprechanlage mit Videofunktion, Breitbandkabelanschluss in allen Räumen und viele Annehmlichkeiten mehr. Die meisten Wohnungen verfügen über einen Außenbereich in Form einer Terrasse, einem Balkon oder einer Dachterrasse. Ein Hausmeisterservice kümmert sich liebevoll um die Pflege und Instandhaltung des Objektes und der Außenanlagen.

Details & Ausstattung

Zimmer
4,0
Aufzug

Preisinformation 

Mietpreis (kalt)
1.167,85 €
Betriebskosten
231,20 €
Heizkosten
150,50 €
 Mietpreis (gesamt)
1.549,55 €
 Zzgl. Mietsicherheit
4.670,00 €

Einrichtung

Aufzug, Erstbezug, Gäste-WC, Hausmeister, Kabel-TV, Keller, Klingel mit Sprechanlage, Parkett, Terrasse, Vollbad, Waschmaschinenanschluss, Wohnküche,

Mehr

Energieausweis
Ausweistyp: bedarfsausweis
Energiebedarf: 67.80 kWh/(m²*a)
Heizungsart: Zentral
Energieträger: Pellet
Wertklasse: B
Warmwasser enthalten:
Gültig bis 16.06.2035 00:00:00

Lage

Eugen-Bolz-Straße 2, 73525 Schwäbisch Gmünd
Schwäbisch Gmünd, die älteste Stauferstadt, liegt malerisch am Fuße der Schwäbischen Alb in Baden-Württemberg. Die Stadt besticht durch ihre historische Altstadt mit prächtigen Fachwerkhäusern, beeindruckenden Kirchen und idyllischen Plätzen. Bekannt für ihre Gold- und Silberschmiedetradition, bietet Schwäbisch Gmünd eine hohe Lebensqualität mit viel Grün, kulturellen Angeboten und einer lebendigen Innenstadt. Naturfreunde genießen die Nähe zum Remstal und zahlreiche Freizeitmöglichkeiten. Dank guter Verkehrsanbindung an Stuttgart und Ulm ist die Stadt ein attraktiver Wohn- und Wirtschaftsstandort.