Ihre Traumwohnung wartet! Großzügiger Balkon, Markenküche und 2,5-Zimmer
Konrad-Adenauer-Ring 5, 65187 Wiesbaden Objektnummer : 90-1790530005
Etage 2
2,5 Zimmer
77,13
1.552,08
Konrad-Adenauer-Ring 5, 65187 Wiesbaden

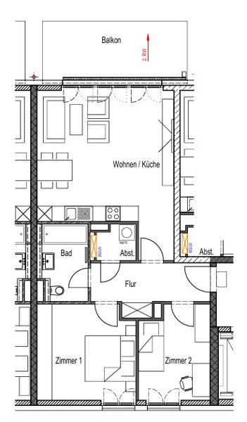
Diese großzügige Etagenwohnung beeindruckt in allen Wohn- und Schlafräumen mit edlem Parkett und moderner Fußbodenheizung, die für ein behagliches Ambiente sorgt. Lichtdurchflutete Räume und eine offen gestaltete Markenküche mit hochwertigen Einbaugeräten laden zum Wohlfühlen und Genießen ein. Praktischer Stauraum steht Ihnen durch einen separaten Abstellraum zur Verfügung. Ein stilvolles Bad mit Duschwanne sowie ein komfortabler Waschmaschinenanschluss vervollständigen das hochwertige Gesamtbild dieser Wohnung.

Es erwarten Sie 166 Wohnungen, verteilt auf 12 Mehrfamilienhäuser. Jede Wohnung verfügt, je nach Etage, entweder über eine eigene Terrasse mit Gartenbereich, einen Balkon, Wintergarten oder eine Dachterrasse.

Die Ausstattung lässt keine Wünsche offen: Eichenparkettboden mit Fußbodenheizung, dreifachverglaste Schallschutzfenster, hochwertige und vollständig ausgestattete Einbauküchen, Malerflies als Wandverkleidung, modern geflieste Bäder mit Markenarmaturen, Gegensprechanlage mit Videofunktion, Breitbandkabelanschluss in allen Räumen und viele Annehmlichkeiten mehr.

Im Erdgeschoss des Komplexes befindet sich ein großer EDEKA-Markt, welcher über ein reichhaltiges Angebot verfügt. Auf dem Dach des Objektes befindet sich ein parkähnlich angelegter Innenhof, welcher exklusiv von den Mietern genutzt werden kann.

Ihr BUWOG Vertriebsteam

Justin Scharne

Details & Ausstattung

Etage
2
Zimmer
2,5
Küche
Aufzug

Preisinformation 

Mietpreis (kalt)
1.188,28 €
Betriebskosten
269,80 €
Heizkosten
94,00 €
 Mietpreis (gesamt)
1.552,08 €
 Zzgl. Mietsicherheit
3.564,84 €

Einrichtung

Aufzug; Balkon; Einbauküche; offene Küche; E-Herd; Abstellraum; Parkett; Fußbodenheizung; Zentralheizung; Fernwärme; Rollläden elektrisch; Schallschutzverglasung; Mieterkeller; Fahrradabstellraum; Gegensprechanlage; Mehrfamilienhaus; Badewanne eingemauert;

Mehr

Energieausweis
Ausweistyp: bedarfsausweis
Energiebedarf: 55 kWh/(m²*a)
Heizungsart: Zentral
Energieträger: Fernwärme
Wertklasse: B
Warmwasser enthalten: Ja
Gültig bis 2028-04-18

Lage

Konrad-Adenauer-Ring 5, 65187 Wiesbaden

Im südlichen Teil erstreckt sich das Rheingauviertel von der Schiersteiner bis zur Dotzheimer Straße. Der urbane und lebendige Stadtbezirk vereint städtisches Wohnen in Gehweite zur Innenstadt sowie ruhiges Wohnen vor der grünen Kulisse des Wellritztals.

Mit seinem großen Angebot an Kneipen, Gaststätten, Restaurants und Freizeiteinrichtungen wird das Rheingauviertel seinem Ruf als lebens- und liebenswertem Stadtteil gerecht.

Auch heute noch sind die gut erhaltenen Gebäudefassaden und reicher Baumbestand ein Blickfang. Kleingewerbe und Geschäfte legen sich wie ein Mosaik über den Stadtteil. Ein Netz von Alleen und kleinen Grünflächen sowie Spielplätzen durchzieht das Viertel und stellt die Verbindung zu den grünen Tälern - Wellritztal und Belzbachtal - her.

Alles ist mit dem Fahrrad oder auch zu Fuß gut zu erreichen! Der Wiesbadener Hauptbahnhof sowie die Innenstadt mit ihrem breiten Angebot an Einkaufsmöglichkeiten sind fußläufig erreichbar.

Ihr BUWOG Vertriebsteam

Justin Scharne